Schulraumprovisorium Campus Irchel, Zürich
realisiert
Hochbauamt Kanton Zürich

Sanierung und Umbau
Wettbewerb, Architektur, Generalplaner, Entwicklung / Doku
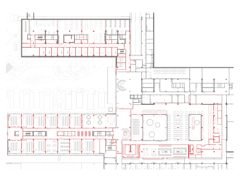
Umbau von zwei Laborbauten und einem Hofgebäude in ein Schulraumprovisorium.
Planung 2020-2023 / Bauzeit 2021-2024

In den nächsten Jahren müssen mehrere Zürcher Kantonsschulen instandgesetzt werden. Als Rochadefläche ist auf dem Universitätscampus Irchel eine temporäre Schulanlage entstanden. Dazu wurden zwei Laborbauten sowie ein Hofgebäude von 1978 umgebaut, allesamt denkmalgeschützt. Die Nutzungsänderung erforderte tiefgreifende Sanierungsmassnahmen. Naturbelassene Oberflächen prägen die schlichten Unterrichtszimmer. Verspielter präsentieren sich das zu Mensa und Mediathek umfunktionierte Hofgebäude sowie die Erschliessungsräume. Geometrische Muster und viel Farbe lockern die langen Korridore auf. Zwischen den Laborbauten erstreckt sich der Pausenhof, der sich zu einem informellen Grünraum weitet.

Foto © Studio Willen

Lichtplaner LLAL AG - Mehr Licht. Mehr Mensch.