Wohnhochhaus Leutschenbach, Zürich
in Planung
Swiss Life AG

Neubau
Architektur
Neubau im Park an der Hagenholzstrasse.
Planung 2019-2024 / Bauzeit 2024-2026

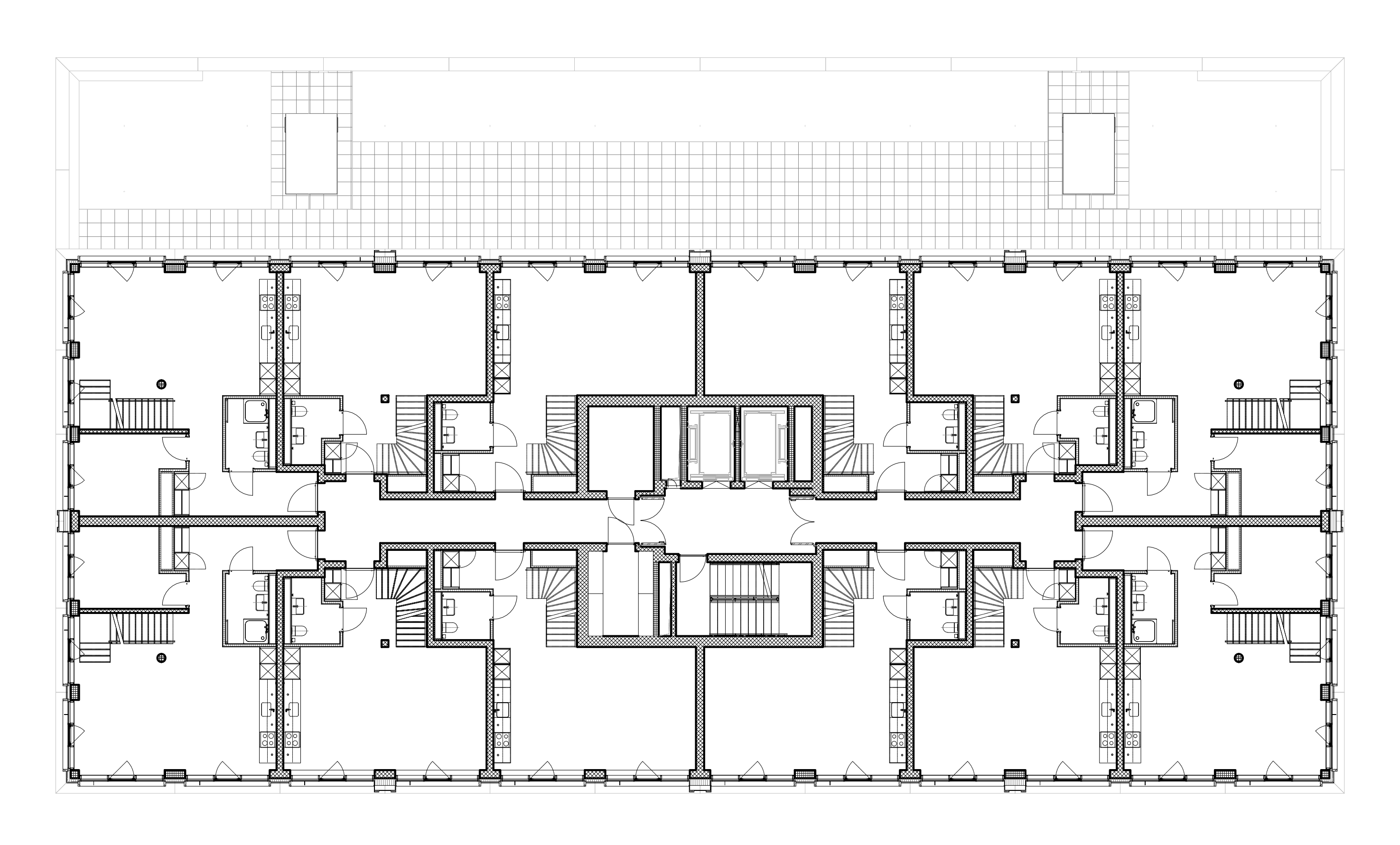
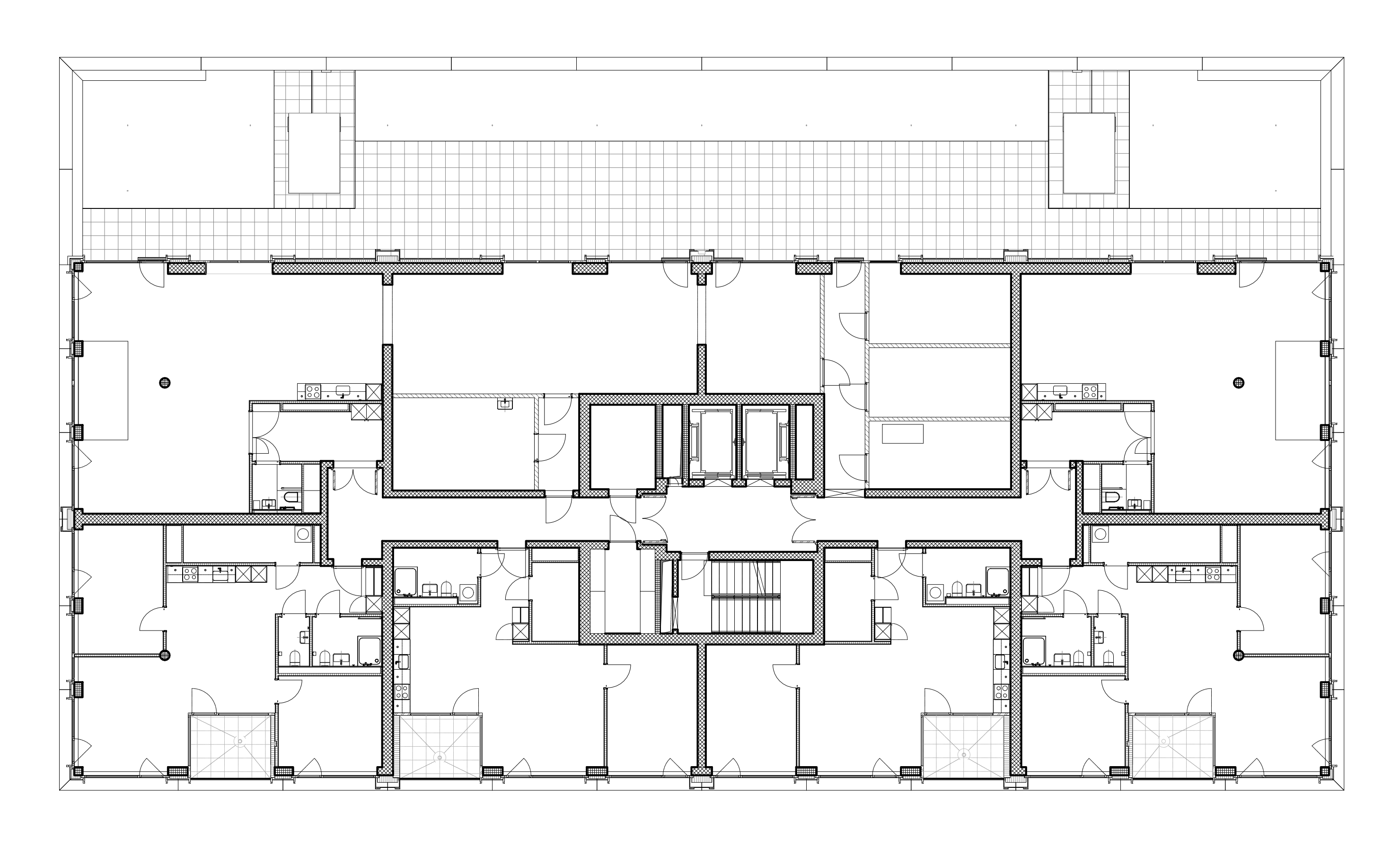
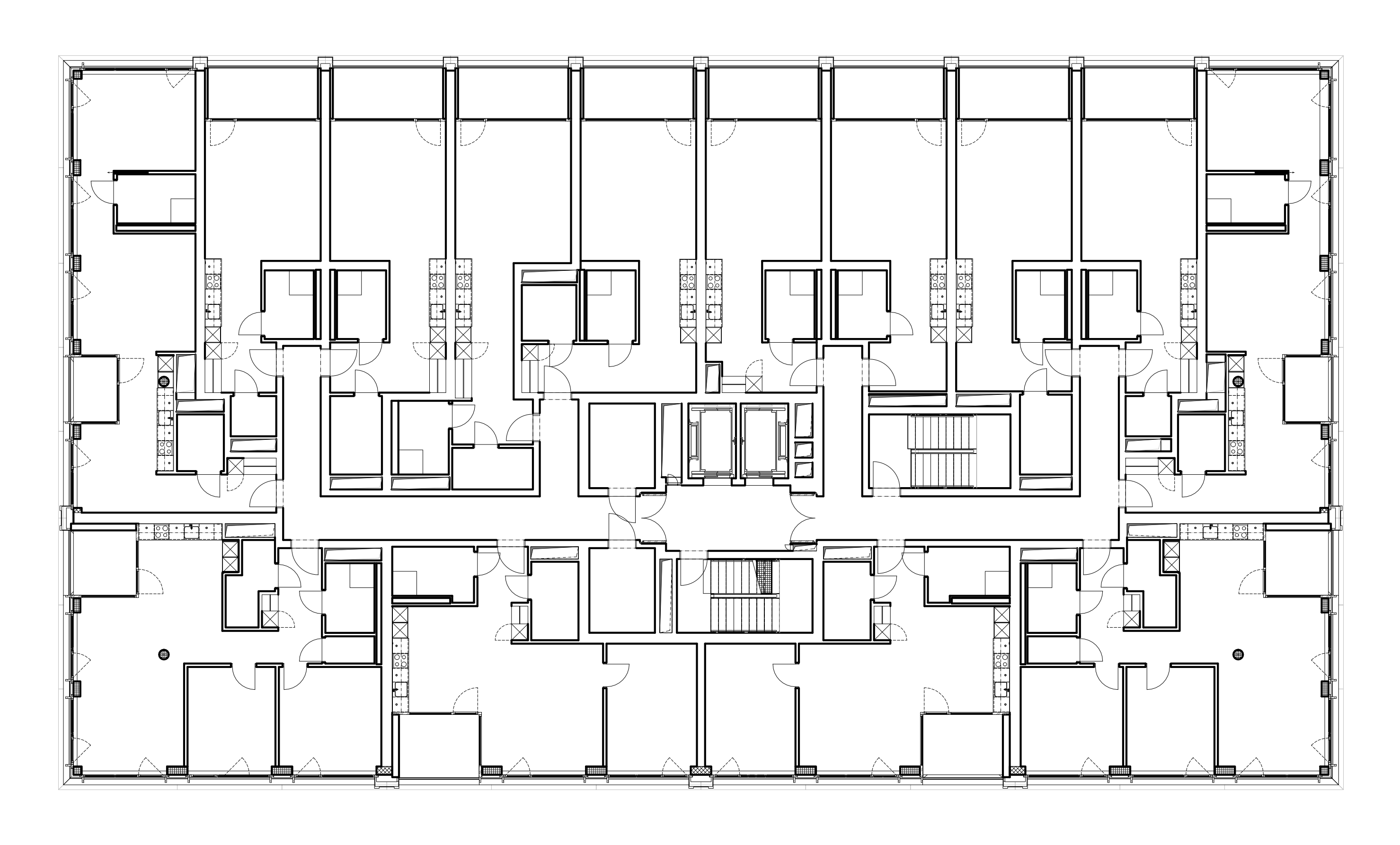
Das knapp achtzig Meter hohe Wohnhochhaus steht als Solitär an der Hagenholzstrasse in einer parkähnlichen Umgebung. Diese verbindet sich mit dem Grüngürtel, der durch das Quartier führt. Während das Erdgeschoss Platz bietet für Dienstleitungen oder öffentliche Nutzungen, verteilen sich auf die 26 Obergeschosse rund 220 Wohnungen. Dank einer Dachterrasse und Gemeinschaftsräumen wird das 6. Obergeschoss zu einem Ort der Begegnung. In den obersten vier Geschossen sind Maisonette-Wohnungen untergebracht, die in der Fassade den optischen Abschluss des Gebäudes bilden. Ein Gerüst aus Faserbeton fasst mehrere Geschosse zusammen und schafft einen vertrauten Massstab, der das Haus in der Umgebung verankert.

Baustelle Leutschenbach Live