Wohnsiedlung Limmatfeld , Dietikon
realisiert
Halter Entwicklungen AG

Neubau
Architektur, Neubau
Im Limmatfeld in Dietikon soll ein attraktiver Stadtteil mit gemischter Nutzung für hochwertiges Wohnen und Arbeiten samt Freizeitangebot entstehen, ergänzt mit der entsprechenden Versorgung und Infrastruktur.
Planung 2010-2014 / Bauzeit 2011-2013

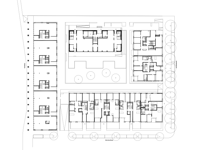
Das Limmatfeld ist ein neuer Stadtteil in Dietikon und zeichnet sich durch gemischte Nutzungen für hochwertiges Wohnen, Arbeiten, Gewerbe sowie Freizeitangebote aus. Die Wettbewerbsresultate für die einzelnen Baufelder zeugen von einer grossen Stilvielfalt.
Baufeld G unterlag der Gesamtplanung von Stücheli Architekten und führt diese Vielfalt fort. Innerhalb eines übergeordneten Konzepts wurden Rahmenbedingungen für einzelne Module definiert, die anschliessend von eingeladenen Jungarchitekten ausformuliert wurden. Für Koordination, Überarbeitung und Ausführungsplanung dieser Module zeichnen Stücheli Architekten verantwortlich. Ebenso für Planung und Ausführung des Kopfbaus sowie zwei weiterer Module.