Wohn- und Gewerbeüberbauung Eichhof West - Baufeld B, Kriens
Im Bau
BVK - Personalvorsorge des Kantons Zürich

Neubau
Architektur
Auf dem Areal Eichhof West entsteht bis 2026 eine Wohn- und Gewerbeüberbauung.
Planung 2020-2024 / Bauzeit 2022-2026

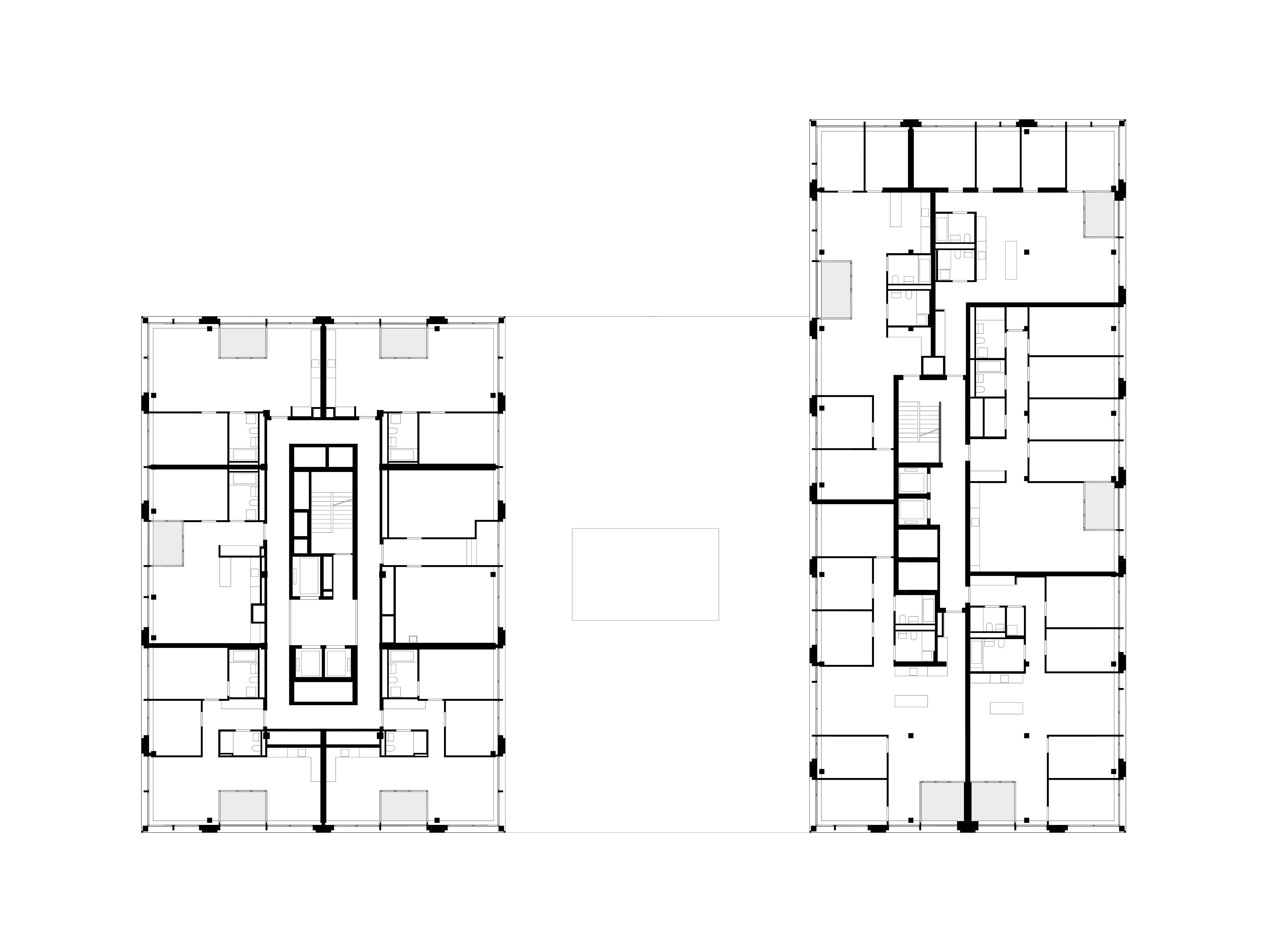
Das Areal Eichhof West bildet den nördlichen Auftakt zum Entwicklungsgebiet Luzern Süd, das sich derzeit stark wandelt. Neben der Brauerei Eichhof entsteht bis 2026 eine Wohn- und Gewerbeüberbauung, basierend auf einem Bebauungsplan mit vier Baufeldern.

Baufeld B liegt prominent im Osten des Areals und prägt dessen Erscheinung zur Strasse. Im dreigeschossigen Sockel sind Gewerbeflächen sowie publikumsorientierte Nutzungen angesiedelt. Darüber gliedert sich das Haus in zwei Teile: Einen Längskörper mit vier Wohngeschossen sowie ein Hochhaus mit 14 Wohngeschossen. Aus den über hundert Wohnungen blicken die meisten Mieterinnen und Mieter auf den Pilatus, die Rigi oder den Vierwaldstättersee. Bronzefarbene Metallrahmen zeichnen die Gebäudekanten scharf nach und bilden zusammen mit den dunklen Photovoltaik-Elementen ein präzise gefügtes Fassadenkleid.

Visualisierung © Bloom Images
Foto Baustelle Eichhof West Kriens August 2024, S+B Baumanagement AG - Generalplaner