Wohnhochhaus Sky, Dübendorf
In Planung
Mettler Entwickler AG, St. Gallen

Neubau
Studienauftrag / 1. Rang
Kompakt- und Komfort-Wohnungen für ein multigenerationen Mietsegment.
Planung 2021-2024 / Bauzeit 2024-2026

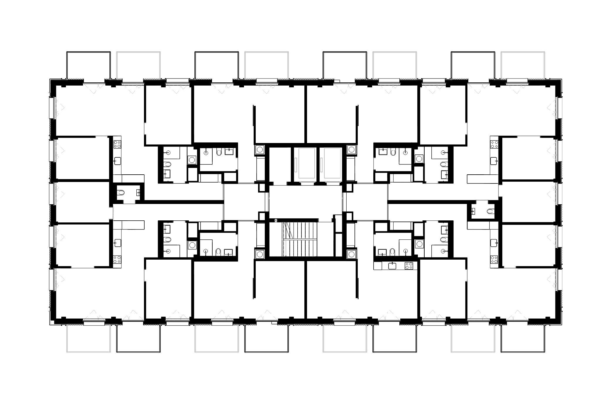
Das Hochhaus Sky enthält 150 Mietwohnungen mit einem hohen Anteil an 3.5-, 4.5- und 5.5-Zimmer-Wohnungen. Somit sind hier hauptsächlich Familien sowie Seniorinnen und Senioren zuhause. Zwischen die beiden Gewerbeflächen im Erdgeschoss schiebt sich die Eingangshalle. Sie verbindet den südlichen Zugang «Am Stadtrand» mit dem grosszügigen Freiraum und dem «Chästrägerweg» im Norden. Die Fassaden des Gebäudes zeichnen sich durch unterschiedlich strukturierte Einzelteile aus, die ineinandergreifen und sich zu einem grossen Ganzen verweben. Flache Eternit-Elemente alternieren mit gewellten. Schlanke Metall-Lisenen halten die Flächen zusammen und zeichnen die Statik nach.

Sky Live - WEBCAM, Baustelle Wohnhochhaus