ETH Hönggerberg HIF, Zurich
completed
ETH Zürich

Renovation and extension
Competition, architecture and general planner
Renovation and extension of a research and education complex. DGNB Platinum Certificate 2025
Planning 2015-2021 / Construction 2019-2023

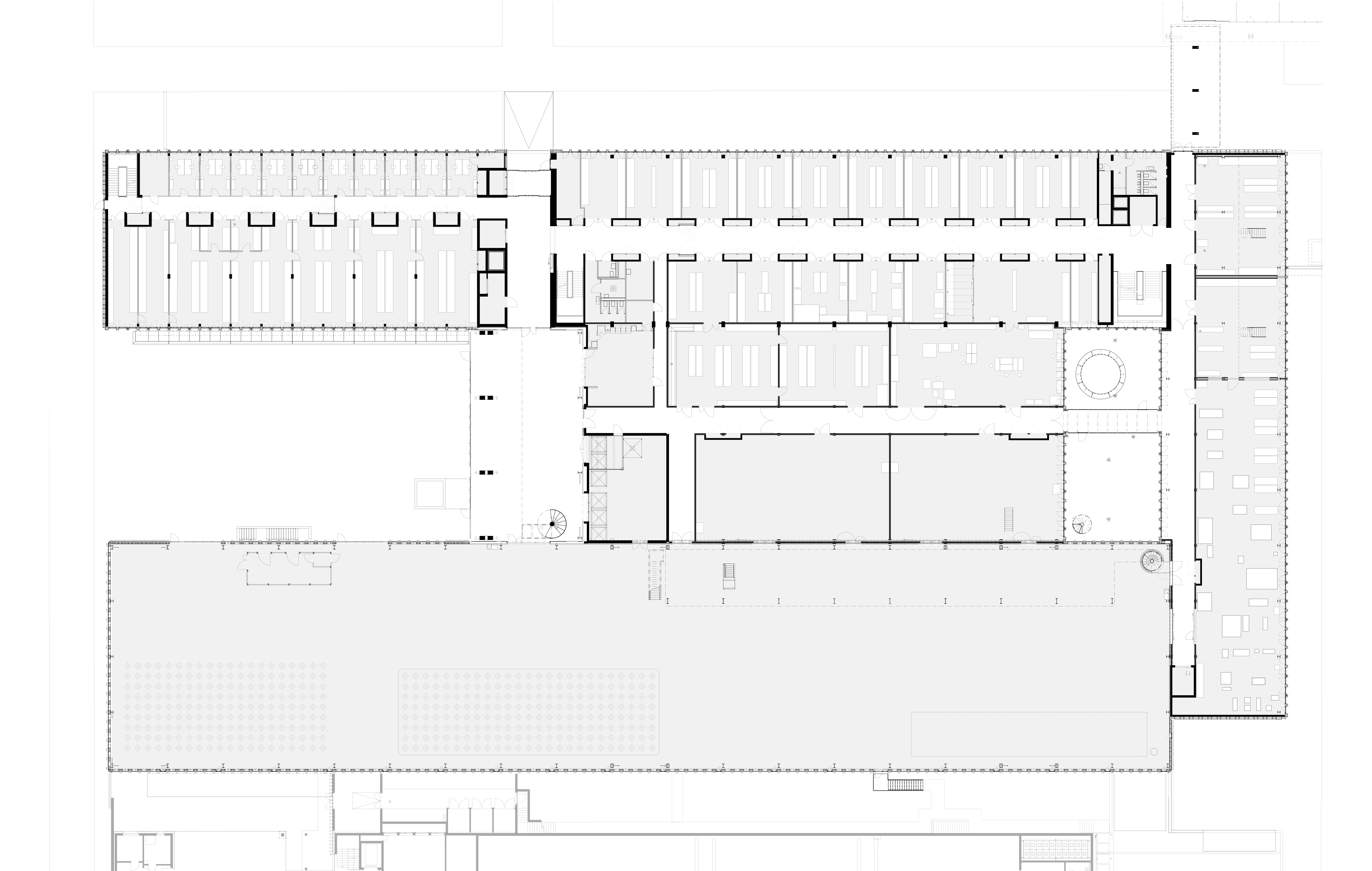
The complete renovation and expansion of the HIF research building from 1976 represents one of the most extensive renovation projects on the ETH Hönggerberg campus. In addition to the high demands in terms of technical equipment and the flexibility of use, the creation of a prestigious and attractive address was also an important consideration. The new main entrance on Laura-Hezner-Weg reinforces the connection between the south and northwest sections of the campus. The large expansion, primarily featuring modern labs, forms an extension of the existing lab and office building. The height and materials harmonies with the adjacent HIL building. Planning and execution were carried out using digital building information modelling, Big Open BIM.