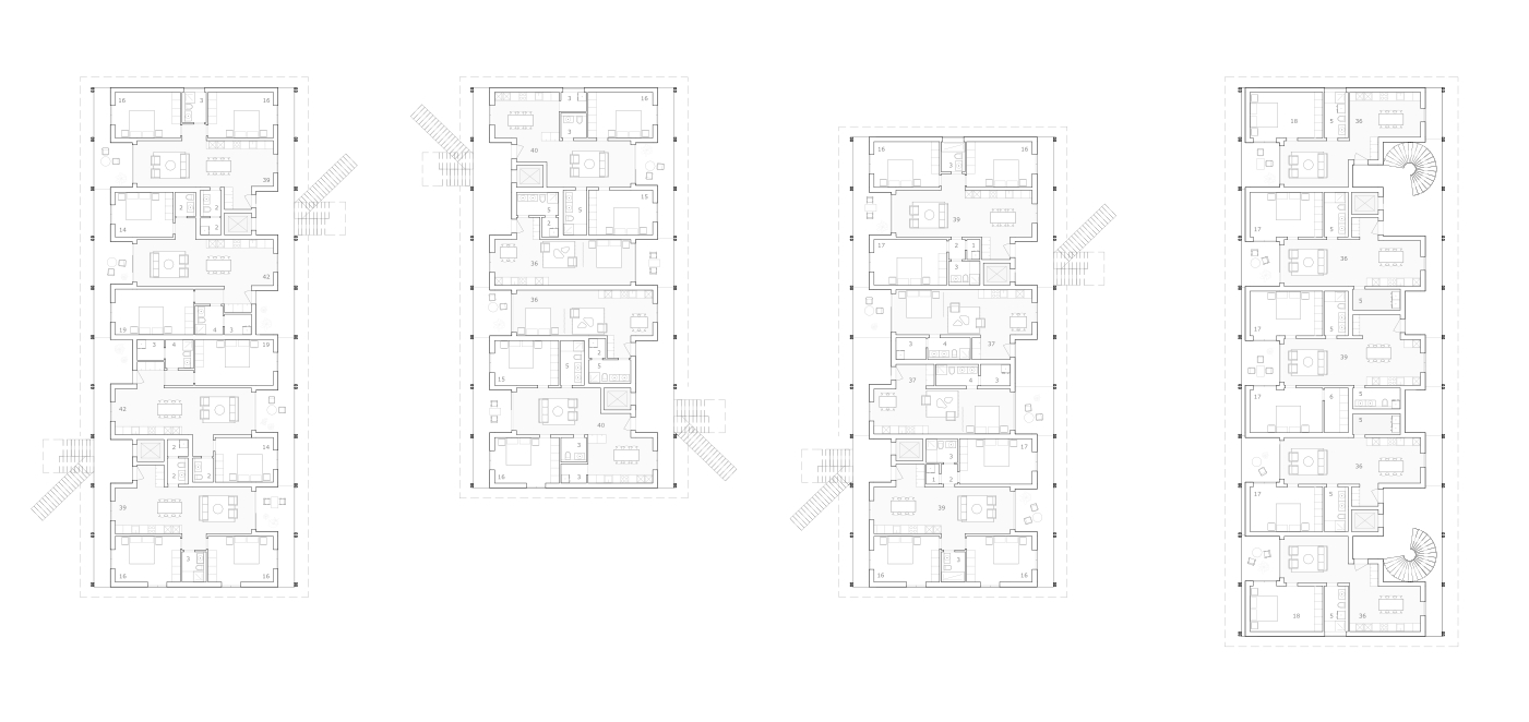
Gubrist residential complex, Weiningen
Planning
Seewarte AG

Study, 1st prize
Architecture
Four new terraced buildings with residential units of varying sizes on the eastern outskirts of Weiningen.
Planning 2024-2027 / Construction 2027-2029

The site is located in the immediate vicinity of the entrance and exit of the Gubrist Tunnel, on the eastern edge of Weiningen. The northern ends of the four terraced buildings border Zürcherstrasse. To the east, a five-storey building forms the prelude to the site; the three other buildings are four-storey. All apartments are accessed via sculptural external staircases and pergolas, which open up to private outdoor spaces at certain points. Regardless of the size, which ranges from 1.5 to 4.5 rooms, all residential units are oriented to the east and west. The wooden buildings with their eaves-side porches bear a subtle resemblance to the traditional farmhouses of Zurich's "Weinland".