Rennweg 53, Zürich
im Bau
Private Eigentürmerschaft, Confiserie Honold AG

Umbau / Sanierung
Umbau / Sanierung
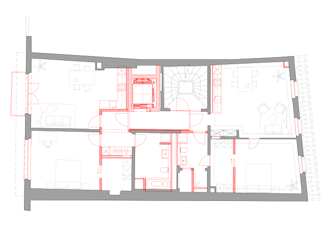
Im Zuge einer umfassenden Gesamtsanierung entstehen sechs neue 2- und 4-Zimmer-Mietwohnungen auf vier Geschossen. Über zwei Mansardgeschosse erstreckt sich eine Maisonette mit Zugang zur neuen Dachterrasse. Im Erdgeschoss bleibt die Confiserie mit boulevardseitigem Café erhalten.
Planung 2016-2025 / Bauzeit 2025-2027

Das hochaufragende Wohn- und Gewerbehaus aus dem Jahr 1876 ist Teil der prominenten Zeilenbebauung am unteren Rennweg. Seine Geschichte reicht bis ins 14. Jahrhundert zurück, wovon heute noch einzelne Konstruktionselemente zeugen. Seit 1905 ist es im Besitz der Familie Honold, die dort die traditionsreiche Confiserie gründete. Aufgrund deren Betrieb erfuhr das Haus mannigfache Eingriffe, die über die Jahrzehnte zu grossen Veränderungen führten. In den 1950er-Jahren wurde die Neurenaissance-Fassade purifiziert und verlor dabei zahlreiche schmückende Details.

Inzwischen hat sich der Flächenbedarf der Confiserie verringert, unter anderem aufgrund der Auslagerung der Produktion. Im Rahmen einer umfassenden Gesamtsanierung entstehen sechs neue Mietwohnungen mit 2- und 4-Zimmern, verteilt auf vier Geschosse. Über die beiden Mansardgeschosse erstreckt sich zudem eine Maisonette-Wohnung, deren Bewohnende Zugang zur neuen Dachterrasse haben. Im Erdgeschoss ist weiterhin die Confiserie mit dem zum Boulevard orientierten Café zu finden.

Äusserlich greift die Neugestaltung einzelne Elemente von 1876 auf. So zeichnen sich die beiden Gewerbegeschosse durch eine Natursteinverkleidung aus und bilden wieder eine zweigeschossige Sockelpartie. Die Holzfenster werden von den historischen Sandsteineinfassungen gerahmt und von neuen Holzläden flankiert. Im Erdgeschoss gewinnt die Fassade ihre ursprüngliche Symmetrie zurück: Wie bereits vor 120 Jahren führt der mittlere Eingang zur Confiserie.